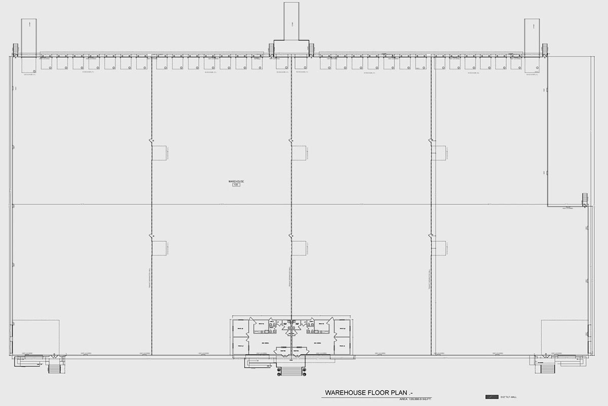
Padilla Warehouse

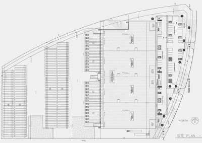
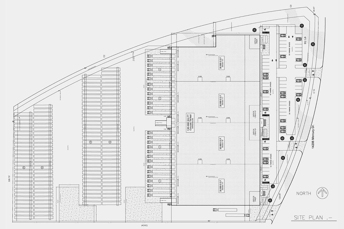
14206 Mercury Dr North
Laredo Industrial Park
Laredo, Tx 78045

Completed
In Progress

Size
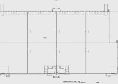
120,000 Sf

Delivery Method
Design-Build

Building Materials
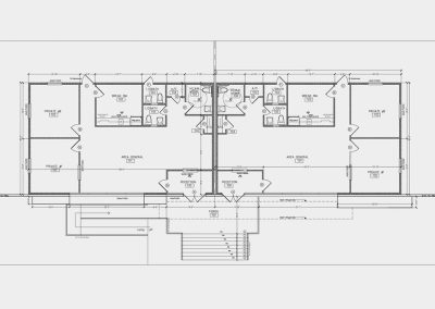
Tilt-Up Wall, Concrete Slab On Grade

Markets
Freight Forwards, Distributors, Warehousing

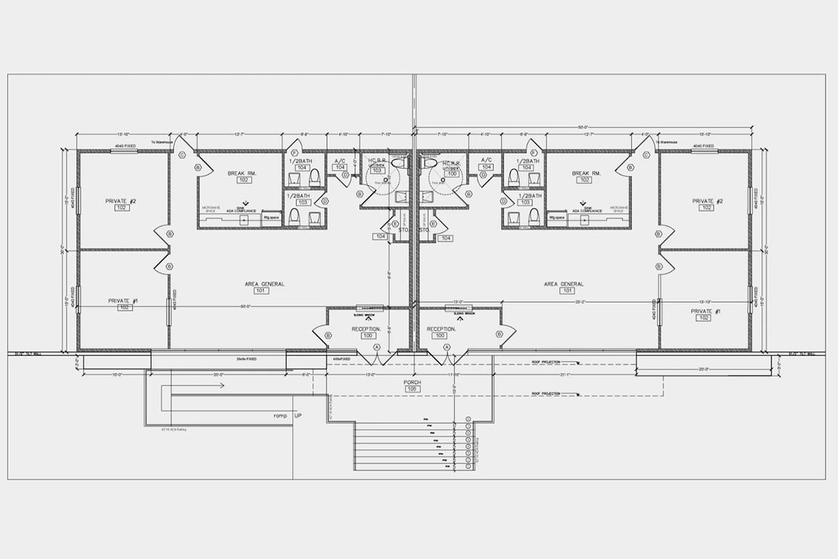
Warehouse Space Available For Lease / All Or In Par

Features:

E

120,000 SF (Divisible) Ready for Immediate Occupancy

E

30,000 SF Each Suite

E

Fire Sprinkler System

E

LED Warehouse Lighting

E

Concrete Tilt Wall

E

30'' FT Minimum Eve Height

E

M1 Zoning

E

Perfect for Transportation Networks, Distribution Centers, Warehousing

E

Direct Access to I-35 via Beltway Parkway & Reuthinger Parkway

E

All Utilities on Site

E

Access to Union Pacific Inter-modal

E

10+ miles to Commercial Port of Entries

This statement is based upon information which we believe to be correct and is obtained from sources we regard as reliable but we assume no liability for errors or omissions therein.